Search more Penthouse (Duplex) in Iż-Żejtun for sale
Search More
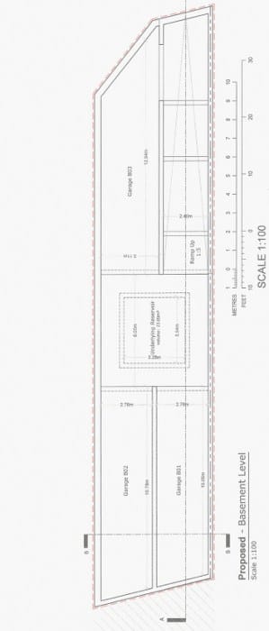
Penthouse (Duplex) in Iż-Żejtun from Remax-malta.com – €510,000

Penthouse (Duplex) in Iż-Żejtun from Remax-malta.com – €510,000

€510,000 • 3 beds

Agency Logo

We don't have a stable local average yet. For context, Malta 3-bed Penthouse average is €707,380; this property is below that figure. Market data from MyMaltaHome.

Żejtun is a large southern town with a strong community feel. Variety of apartments, townhouses and maisonettes at accessible prices.

Estimated Loan Repayment

If you apply for a Loan to buy this property priced at €510,000, at age 30 (you can change this), assuming it’s your first home with a 10% deposit, at 2.9% interest, and a term up to retirement (35 years), your estimated monthly repayment is €1,741.

See the full Loan Calculator →

Estimates only. Eligibility and terms depend on your bank.

Other Penthouse (Duplex) in Iż-Żejtun within a similar price range

Penthouse (Duplex) in Iż-Żejtun
€519,000 • 3 beds
Penthouse (Duplex) in Wied il-Għajn
€516,000 • 3 beds
Penthouse (Duplex) in Ir-Rabat
€500,000 • 2 beds
❤️ 0
Scroll to Top