Search more Apartment in Is-Siġġiewi for sale
Search More
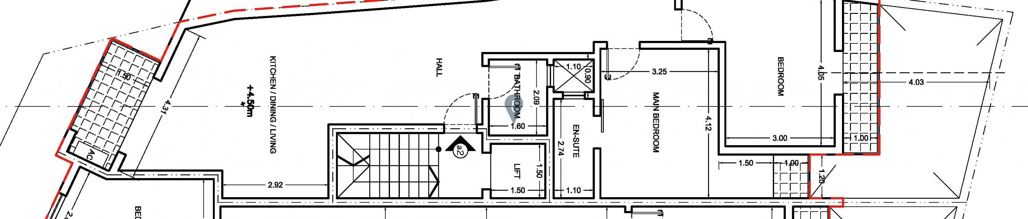
Apartment in Is-Siġġiewi from Zanzihomes.com – €409,000

Apartment in Is-Siġġiewi from Zanzihomes.com – €409,000

€409,000 • 3 beds

Agency Logo

View directly on Zanzihomes.com

Priced at €409,000, this 3-bed Apartment sits below the Is-Siġġiewi average (€437,325) and below the Malta Apartment average (€531,265). Market data from MyMaltaHome.

Siġġiewi is a scenic, traditional town with easy access to Dingli and the countryside. Terraced houses, townhouses and maisonettes are common.

Estimated Loan Repayment

If you apply for a Loan to buy this property priced at €409,000, at age 30 (you can change this), assuming it’s your first home with a 10% deposit, at 2.9% interest, and a term up to retirement (35 years), your estimated monthly repayment is €1,396.

See the full Loan Calculator →

Estimates only. Eligibility and terms depend on your bank.

Other Apartment in Is-Siġġiewi within a similar price range

Apartment in Is-Siġġiewi
€409,000 • 3 beds
Apartment in Is-Siġġiewi
€410,000 • 2 beds
Apartment in Is-Siġġiewi
€410,000 • 2 beds
❤️ 0
Scroll to Top